|
|
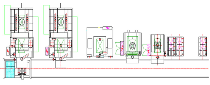
密封箱式多用爐生產線發布日期:2020-2-18 18:59:58 所屬分類: 軸承行業 瀏覽次數:5062次 1、主要用途
可控氣氛多用箱式爐主要用于齒輪、齒軸等工件的滲碳、碳氮共滲、保護性氣氛加熱淬火(硝鹽淬火)、回火、調質等熱處理工藝。
2、設備組成
多用爐生產線一般由密封多用箱式爐、(真空)清洗機、高低溫回火爐、送料小車、備料臺等組成。
3、加熱方式:電加熱或燃氣加熱
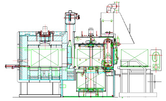
![]() ![]() 技術規格
|
||||||||||||||||||||||||||||||||||||||||||||||||||||||||||||||||||||||||||||||||||||||||||||||||||||||||||||||||||||||
|
電 話:0563-6849001 6849006
傳 真:0563-6849588
手 機:13967257660 E-mail:zgl19821001@126.com
地址:安徽省廣德縣東亭鄉集鎮工業區
|
網址二維碼 |